L'ul 50E è lo standard di certificazione UL per le valutazioni ambientali delle custodie per apparecchiature elettriche. Lo standard copre requisiti strutturali e di prestazione ambientali aggiuntivi di apparecchiature elettriche per apparecchiature elettriche con aspetti ambientali. Lo standard è applicabile ai mercati di stati uniti, messico e Canada.
Lo standard UL 50E si applica alle custodie di apparecchiature elettriche installate e utilizzate in luoghi non pericolosi in conformità con il codice elettrico canadese parte I CSA C22.1 e codice elettrico nazionale NFPA 70. Le regole della doccia elettrica messicana UL 50E NOM-001-SEDE sono le stesse:
1) custodie per luoghi interni, tipi 1, 2, 5, 12, 12K e 13;
2) custodie per luoghi interni o esterni, tipi 3, 3R, 3S, 4, 4X, 6 e 6P.
UL 50E copre la struttura ambientale aggiuntiva e i requisiti di prestazione della custodia. I requisiti generali per le custodie sono contenuti negli standard CSA C22.2 No. 94.1, UL 50 e NMX-J-235/1-ANCE o in combinazione con questo standard per prodotti di uso finale.

Il test UL 50E include i principali test: test del gocciolamento, test della pioggia, test della polvere, test della glassa esterna, test del tubo flessibile, protezione dalla corrosione interna, protezione dalla corrosione esterna, test di immersione, test di pressione, test di esclusione dell'olio, test della rondella, test di ingresso dell'asta, test di disallineamento, esposizione all'acqua e test di immersione. Questo articolo contiene solo il test di esposizione all'acqua e immersione nello standard UL 50E, presentazione della doccia UL 50E.
La funzione principale delDoccia UL 50EÈ testare le proprietà fisiche e altre correlati di prodotti elettronici, elettrici, lampade, armadi elettrici, componenti elettrici e altri prodotti in condizioni di pioggia simulate. Dopo il test, attraverso la verifica per determinare se le prestazioni del prodotto soddisfano i requisiti, al fine di facilitare la progettazione, il miglioramento, la verifica e l'ispezione in fabbrica del prodotto.

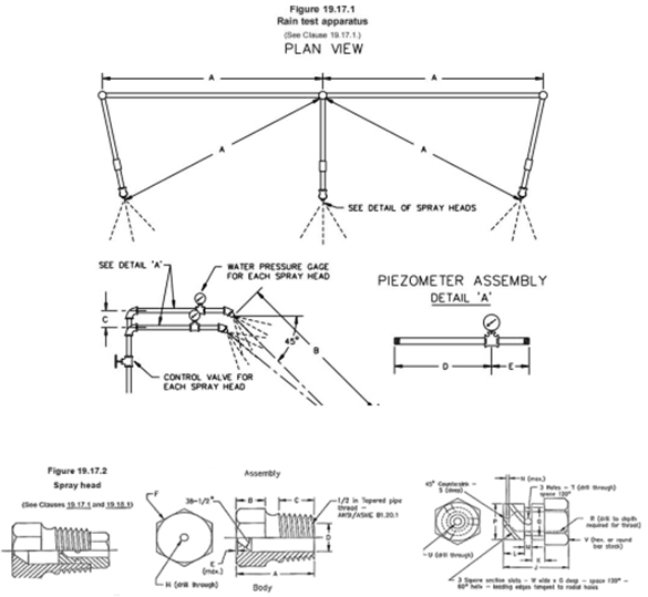
La doccia UL 50E simula principalmente varie condizioni di pioggia naturale, tra cui dimensioni, velocità, pioggia, angolo di pioggia, ecc., per spruzzare il prodotto testato.
La doccia UL 50E di solito è composta da quanto segue:
1. Sistema di alimentazione dell'acqua: responsabile della fornitura di fonte d'acqua pulita e stabile e del controllo della pressione dell'acqua e della velocità del flusso d'acqua attraverso la regolazione della pressione doccia UL 50E.
2. Sistema di spruzzatura dell'acqua: composto da una serie di testine di irrigazione accuratamente progettate per garantire che la distribuzione e le caratteristiche dei gocce di pioggia soddisfano i requisiti standard.
3. Sistema di controllo: utilizzato per impostare e controllare i parametri del test della pioggia, come il tempo di pioggia, la pioggia, ecc., e il monitoraggio e la registrazione in tempo reale dei dati del test.

Al lavoro, l'acqua viene fornita attraverso il sistema di alimentazione dell'acqua all'ugello e poi spruzzata in un modo specifico per formare una pioggia simulata. Il prodotto testato viene posizionato su una doccia fissa UL 50E nella sala antipioggia e viene spruzzato con acqua piovana. Il controllo di diversi parametri, diverse intensità e tipi di pioggia possono essere simulati.
1. Numero di ugelli e angolo di iniezione, l'angolo di iniezione è di 45 °.
2. Pressione dello spruzzo d'acqua, in genere 34,5kpa o regolabile per soddisfare i diversi requisiti di prova.
3. L'altezza di giunzione della colonna dell'acqua dell'ugello è regolabile, la gamma può essere da 300mm a 1200mm o 1000mm a 2000mm.
4. Il tempo di prova è regolabile e può essere impostato da 0 a 99999.9 minuti.
5. Il materiale di supporto può essere formato in materiale di alluminio o profilo in alluminio industriale e la base può essere dotata di una ruota del freno a cinghia universale.
6. Struttura e funzione: la doccia UL 50E può includere componenti come testine sprinkler, supporti, manometri, ecc. Il design della spaziatura e della struttura delle testine di irrigazione deve essere conforme ai requisiti grafici standard UL specifici.
| Modello | R-UL020 | |
Dimensioni complessive (mm) | 800*1500*3800mm | |
Gamma di regolazione dell'altezza del dispositivo spray | 1000-3600mm (regolabile) | |
Parametro | Numero di testina di spruzzo | 3 testine spray |
Spaziatura degli ugelli | 710mm | |
Diametro del foro di spruzzatura | 0. 5mm | |
Pressione dell'acqua | 34.5Kpa | |
Dimensioni della piattaforma del campione | ||
Carico del carico della piattaforma campione | 100 kg | |
| ||
| ||
LIBDoccia UL 50EÈ eccellente nei parametri tecnici di cui sopra:
A. Utilizzo del processo di produzione di ugelli avanzato per garantire che l'uniforme della distribuzione della goccia di pioggia sia superiore allo standard del settore;
B. Il sistema di regolazione della pressione unico può non solo mantenere accuratamente la pressione impostata, ma ha anche la funzione di compensazione automatica della variazione di pressione per garantire la stabilità del test;
C. La regolazione dell'altezza dell'ugello adotta il controllo elettrico, il funzionamento conveniente e l'alta precisione;
D. Il controllo del tempo di prova è accurato a 0.1 minuti, che fornisce una forte garanzia per il test del livello di ricerca scientifica;
E. La struttura di supporto è stata rinforzata per garantire la stabilità e ridurre il peso complessivo dell'attrezzatura, il che è conveniente per il trasporto e l'installazione.
F. Il sistema di controllo intelligente unico può realizzare il monitoraggio remoto e la registrazione dei dati, il che migliora notevolmente l'efficienza del test e la convenienza di gestione.
1. Prodotti elettronici ed elettrici
Inclusi telefoni cellulari, computer, tablet, caricabatterie, alloggiamenti elettrici, ecc., per garantire che questi prodotti possono funzionare ancora normalmente in un ambiente umido, per prevenire cortocircuito, guasto e altri problemi causati dall'acqua.
2. Ricambi Auto
Fari per auto, fanali posteriori, dashboard, sensori, unità di controllo elettronico e altri componenti devono avere buone prestazioni impermeabili per adattarsi a varie condizioni atmosferiche.
3. Attrezzatura da esterno
Lampioni stradali, telecamere di sorveglianza, apparecchiature di comunicazione, pannelli solari e altre apparecchiature esterne sono spesso esposte all'ambiente antipioggia, attraverso il test della pioggia è possibile controllare la sua capacità di protezione.
4. Aerospaziale
Parti di aerei, alloggiamenti per veicoli spaziali, ecc., richiedono un'elevata resistenza all'acqua e le docce UL 50E aiutano a mantenere il normale funzionamento in condizioni meteorologiche difficili.
Vedi qui, credo che tu abbia una buona conoscenza della doccia UL 50E, se ti stai toccando il test delle prestazioni impermeabili del prodotto, la doccia LIB UL 50E sarà la tua scelta ideale. I suoi parametri tecnici precisi, prestazioni affidabili e un'eccellente reputazione del marchio possono fornire una solida garanzia per la qualità dei tuoi prodotti. Contattaci oggiInquiry@libtestchamber.comPer altri dettagli del prodotto e offerte speciali!
English
русский
français
العربية
Deutsch
Español
한국어
italiano
tiếng việt
ไทย
Indonesia
